ODEBÍRAT NOVINKY
Úvod Kategorie Architektura a urbanismus Neobvyklý domek postavený na velmi úzkém půdorysu nabízí nádherný výhled na Znojemský hrad

Neobvyklý domek postavený na velmi úzkém půdorysu nabízí nádherný výhled na Znojemský hrad

Neobvyklý domek postavený na velmi úzkém půdorysu nabízí nádherný výhled na Znojemský hrad
27. 2. 2021 / Autor: Štěpánka Šulanová, foto: Kuba & Pilař architekti s.r.o

Velmi zajímavý rodinný domek z pera Kuba & Pilař architekti s.r.o. vyrostl v proluce na břehu řeky Dyje. Obyvatelům tak nabídl nejen zajímavé bydlení, ale také krásný výhled na protější břeh, kde se zvedá skalní stěna se Znojemským hradem, rotundou sv. Kateřiny a kostelem sv. Mikuláše.

Pozemek, na kterém dům stojí je prolukou mezi rodinnými domy, které tvoří nábřeží řeky Dyje. Terén pozemku je velmi svažitý, má původní terasovou úpravu s kamennými stěnami. Okolní zástavba je velmi různorodá, jedná se především o rodinné či bytové domy, jedno nebo dvoupodlažní. Rodinný domek asi nejvíce zaujme tvarem. Dům navrhli architekti na velmi úzkém obdélníkovém půdorysu. Ten dodržuje uliční čáru a zároveň si zachovává mírný odstup od ostatních budov.

Dům má tři nadzemní podlaží, jedno z nich je pak položeno do svahu. Část domu od nábřeží je zkosená a tvoří šikmou střechu navazující na střechy sousedních domů. Zbývající část domu pak pokračuje plochou střechou. Velmi zajímavé je to, že střecha je po celé své ploše zelená a opticky tak přechází do zahrady. Do zelené plochy střechy jsou vyříznuté dva asymetrické okenní otvory dětských pokojů a obytného prostoru.

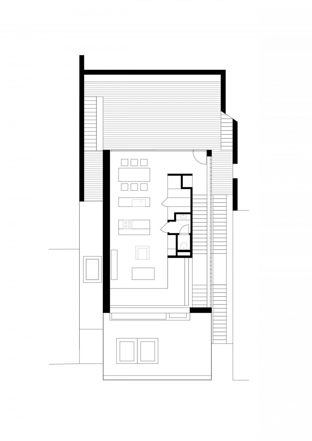
Vjezd i vchod do domu jsou z nábřežní ulice. Podél domu je navrženo venkovní schodiště, po kterém se dostaneme na terasu a do zahrady. V 1.NP je garáž, technická místnost a vchod. Hned vedle vstupu je umístěna pracovna, která díky velkému prosklenému oknu dostala krásné světlo. Ve 2.NP je ložnice rodičů s vlastní koupelnou, pokoj pro hosta, dva dětské pokoje, velké koupelna a místnost pro domácí práce. Ve 3.NP je obytný prostor, do kterého je vsazený uzavřený box se záchodem a spíží, do boxu je vestavěná část kuchyně a krb. Kuchyňský pult rozděluje obytný prostor na severní část s pohovkami a krbem, a na jižní část s jídelním stolem s možností otevření na venkovní terasu.

Nosné konstrukce domu jsou ze železobetonu a oceli. Fasádní obklady jsou z hliníkových černých plechů. Okna v celém domě jsou z hliníkových rámů, boční stěna vnitřního schodiště je složená z mléčného profilového skla. Skladby zelené střechy je složená z několika vrstev drenážních, filtračních a ochranných fólií. Dům je vytápěný tepelným čerpadlem země-voda, má vnitřní teplovzdušné větrání s rekuperací.

Doporučujeme také:

TV Architect v regionech: Kuba&Pilař architekti

Černá kostka se v Ostravě stavět bude, architekti aktualizují její dokumentaci

Doporučené pořady

Díla architektů a designérů

Díla architektů a designérů

TV Architect představuje...

TV Architect představuje...

TV Architect v regionech

TV Architect v regionech

Skryté poklady architektury pohledem Zdeňka Lukeše

Skryté poklady architektury pohledem Zdeňka Lukeše

TV Architect na Slovensku

TV Architect na Slovensku

U jednoho stolu

U jednoho stolu

Už máte klon umělé inteligence?

Už máte klon umělé inteligence?

Osobnosti současné architektury

Osobnosti současné architektury

Chátrající skvosty

Chátrající skvosty

Architekti nové generace

Architekti nové generace

Konference architektury

Konference architektury

Akademie navrhování interiérů

Akademie navrhování interiérů


Hledáte inspiraci pro bydlení?


© 2026 Living Media s.r.o.
Vytvořeno v Beneš & Michl
Zavřít reklamu